VM ESTUDIO

CASA INFANTAS

residencial

VM Estudio acometió el proyecto de reforma integral de este espacio diáfano de 55 metros cuadrados cuyo principal objetivo fue la redistribución de las estancias con el fin de ordenar el espacio y lograr la necesaria separación entre las zonas pública y privada de la vivienda.

El diseño del proyecto gira en torno a una península multiusos que además de actuar como eje vertebrador articulando  la distribución, independiza la cocina del salón y actúa como superficie de trabajo así como mesa de comedor o escritorio.



Tanto los muebles de la cocina, como la península y el almacenaje de toda la vivienda, han sido diseñados por VM Estudio y se han fabricado a medida en abedul laminado con acabado natural barnizado, con el fin de ganar luminosidad y no competir con el artesonado oscuro del techo.

Las cortinas blancas de techo a suelo definen las diferentes estancias haciendo que el espacio se articule en función de su posición, sin necesidad de levantar tabiques que hubieran roto visualmente el espacio y sin perder la sensación de amplitud a pesar del reducido tamaño de la vivienda. 

Aunque el baño ha sido la única estancia que no ha sufrido una modificación en su localización, ha sido reformado en su totalidad, ampliando la zona de ducha con la colocación de un plato de 1x1 m. en textura pizarra de color piedra, buscando un acabado similar al del suelo de microcemento de toda la vivienda para lograr una continuidad de pavimentos. 

El mueble es un diseño del VM-Estudio y se ha fabricado en hierro y madera laminada de abedul con acabado natural protegido con barniz mate, el mismo material empleado en el diseño de todos los muebles realizados a medida para la vivienda.

Documentación adicional del proyecto

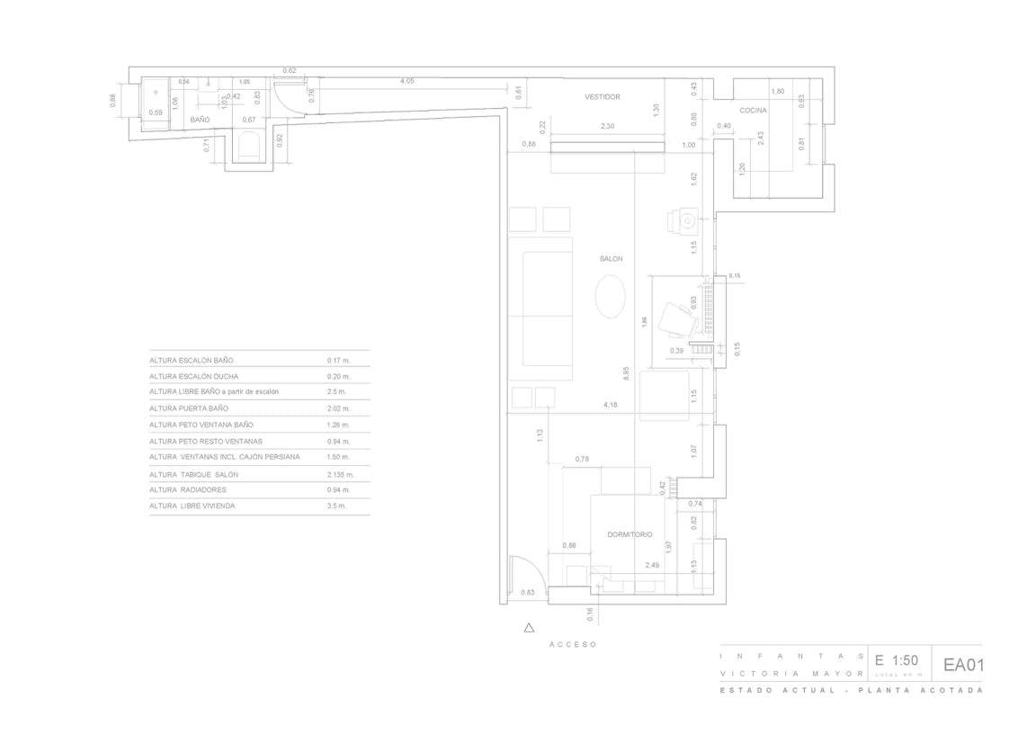
Plano de estado anterior a la reforma

Plano de estado reformado amueblado

Diseños 3D del estado reformado amueblado                   

Diseños 3D del baño 

Visualización conceptual del proyecto en moodboards de materiales y acabados. 

Estado de la vivienda antes de la reforma